Ken and Karen
Welcome to your build
Elevated Duplex Living
97 Kingsley Street, leamington
This is home base.
Ken and Karen, this page is your window into the journey of your build. Here you’ll find photos, videos, and milestone updates that capture each step of the build, from the early stages right through to the exciting roof shout and beyond. It’s a simple way to stay close to the progress and enjoy watching your duplex units take their shape.
We’re stoked to be on this journey with you.
Let’s build something great together.
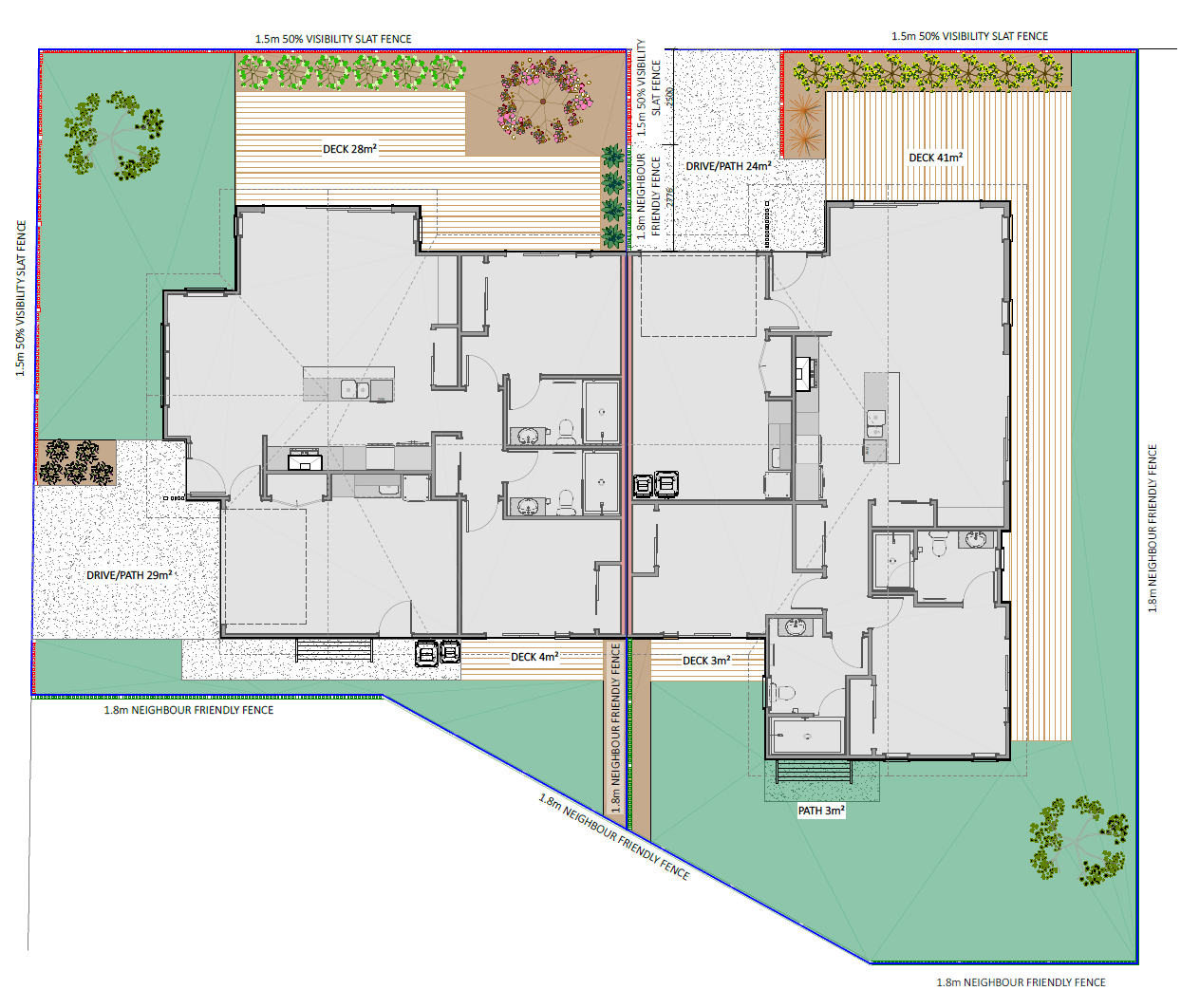
YOUR HOUSE PLANS
PROJECT MILESTONES
PHASE 1 - Civil works
PHASE 2 - CONSTRUCTION
COMPLETED
Plans are finalised and signed off with you
Building Consent Submission Date: 9 April 2026
Building Consent Granted Date: 8 May 2026
PHASE 3 - FINISHING
PHASE 4 - OUTDOORS
PHASE 5- LETS MOVE IN









