Modern Family home
3 TE WHAA LANE, RIVER GARDENS - Ngāruawāhia
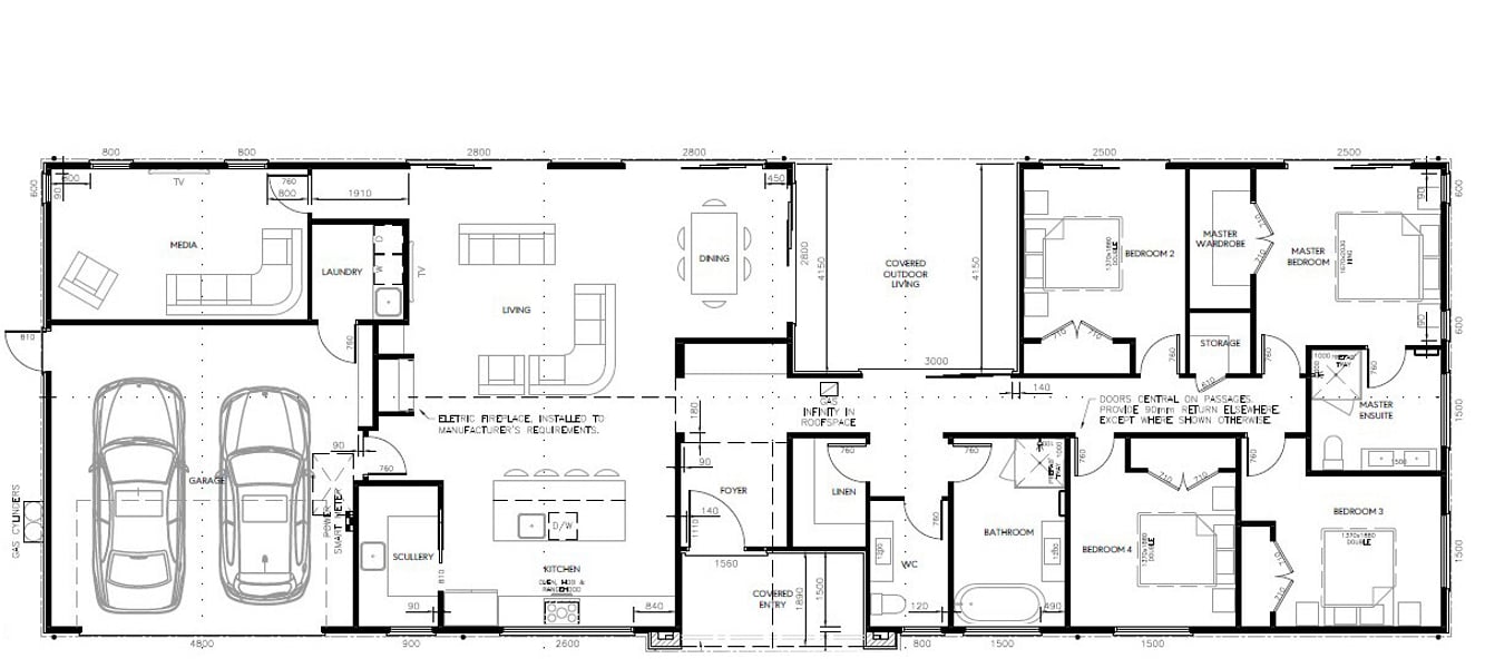
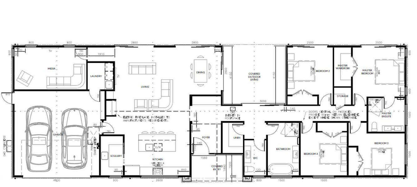
3 Te Whaa is set to become a spacious modern family home at River Gardens, designed for light, flow, and easy living. With open-plan spaces, generous bedrooms, and seamless connection to the outdoors, it is a showcase of what country living can look like just 20 minutes from Hamilton.
What makes this build special is the setting. River Gardens offers wide open sections, fresh air, and a close-knit community surrounded by the river and the Hakarimata Range, while still keeping you close to modern conveniences.
At Kingston Group, we build more than houses. We create homes that families love to live in and communities are proud of.
3 Te Whaa reflects that vision, a home crafted with care, set in a place designed for space, connection, and quality living.
Follow along as this build takes shape, step by step, into a place a family will soon call home.
We’re stoked to be on this journey with you.
Let’s build something great together.
HOUSE PLANS
PROJECT MILESTONES
PHASE 1 - CONSTRUCTION
PHASE 2 - FINISHING
PHASE 3 - OUTDOORS
PHASE 3- LETS MOVE IN















































































