Skip to main content

New announcement. Learn more

Peter

Welcome to your DEVELOPMENT

Functional, Tenant Ready Units

103 Oakfield crescent, pukete

This is home base.

Peter, this page is your window into the journey of your developments progress. Here you’ll find photos, videos, and milestone updates that capture each step of the process from the early stages right through to the exciting roof shout and beyond. It’s a simple way to stay close to the progress and enjoy watching your development take shape.

We’re excited to be on this journey with you.

Let’s create something great together.

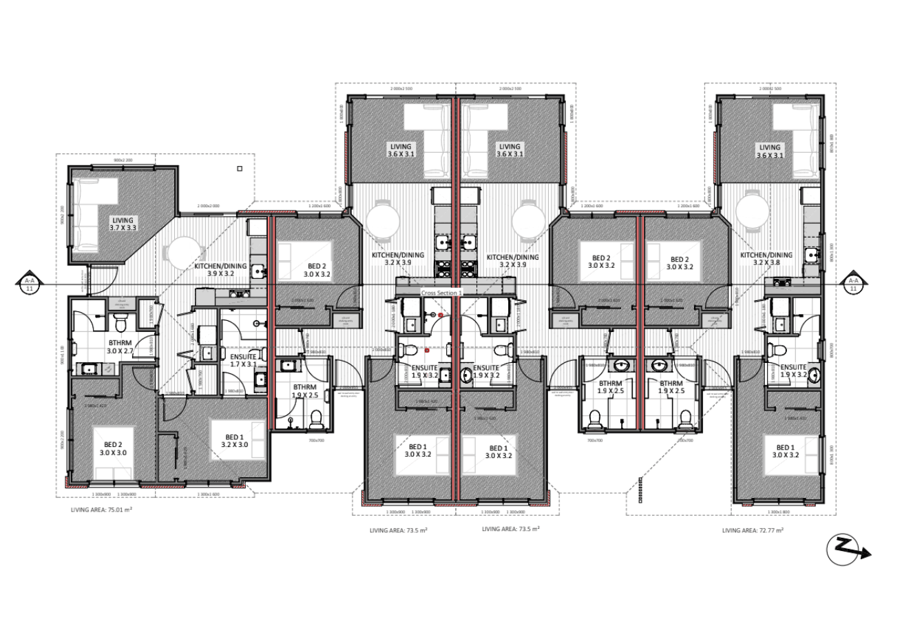
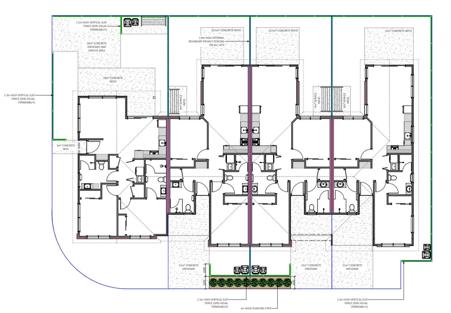
YOUR HOUSE PLANS

PROJECT MILESTONES

PHASE 1 - Civil works

PHASE 2 - CONSTRUCTION

COMPLETED

  • Plans are finalised and signed off with you

  • Plans are currently in working drawing stage 

PHASE 3 - FINISHING

PHASE 4 - OUTDOORS

PHASE 5- LETS MOVE IN

PHOTOS OF THE JOURNEY

 

This product has been added to your cart

CHECKOUT