Skip to main content

New announcement. Learn more

John & Christina

Welcome to your build

Stylish Family Living

16 Grey street, kihikihi

This is home base.

John & Christina, this page is your window into the journey of your new home. Here you’ll find photos, videos, and milestone updates that capture each step of the build, from the early stages right through to the exciting roof shout and beyond. It’s a simple way to stay close to the progress and enjoy watching your house take shape.

We’re stoked to be on this journey with you.

Let’s build something great together.

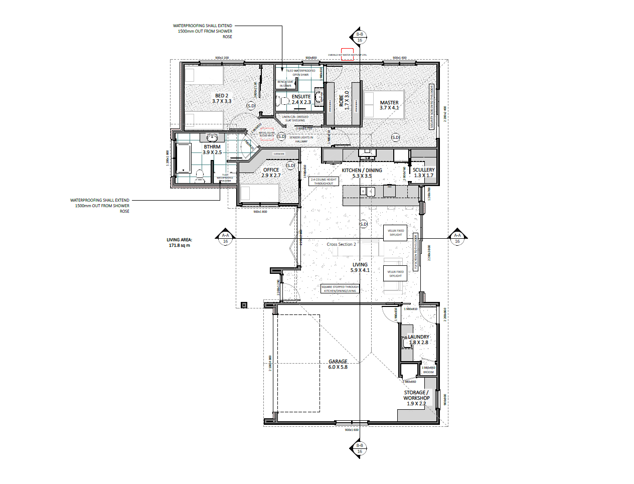
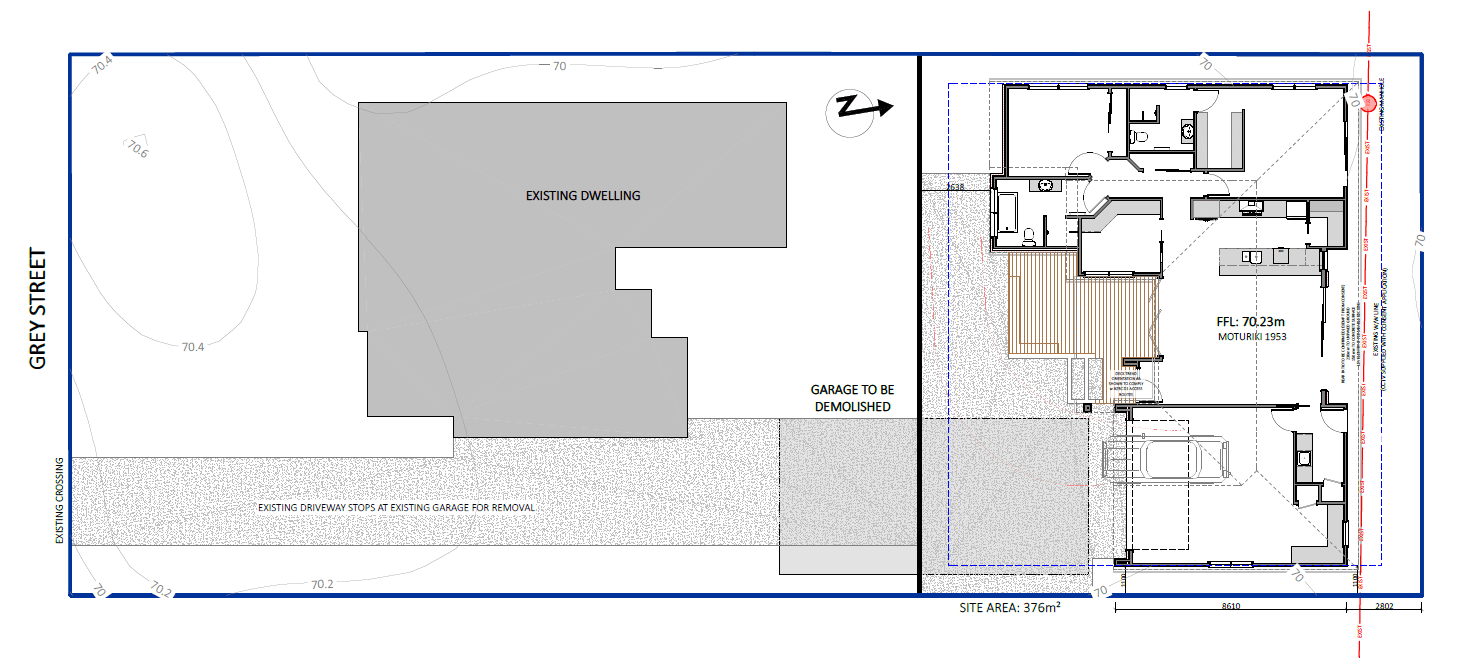
YOUR HOUSE PLANS

PROJECT MILESTONES

PHASE 1 - CONSTRUCTION

COMPLETED

  • Plans are finalised and signed off with you

  • Building Consent Submission Date: 14 April 2026

  • Building Consent Granted Date: 14 May 2026

  • Earthworks to begin 8 June 2026

PHASE 2 - FINISHING

PHASE 3 - OUTDOORS

PHASE 3- LETS MOVE IN

PHOTOS OF BUILD

 

This product has been added to your cart

CHECKOUT