Lee & Sacha
Welcome to your build
Modern Family home
126 FLAT ROAD, TE AWAMUTU
This is home base.
Lee and Sacha, this page is your window into the journey of your new home. Here you’ll find photos, videos, and milestone updates that capture each step of the build, from the early stages right through to the exciting roof shout and beyond. It’s a simple way to stay close to the progress and enjoy watching your house take shape.
We’re stoked to be on this journey with you.
Let’s build something great together.
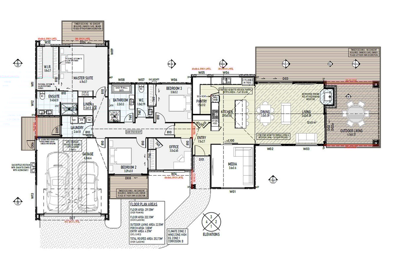
YOUR HOUSE PLANS
PROJECT MILESTONES
PHASE 1 - CONSTRUCTION
COMPLETED
Plans are finalised and signed off with you
Building Consent Submission Date: 21 October 2025
Piles are complete.
Pad has been boxed.
Driveway has been formed.
PHASE 2 - FINISHING
PHASE 3- LETS MOVE IN





































