Welcome to your build
891 OURUWHERO ROAD
TE KAWA FARM HOUSE
Welcome to Your Home Base
This page is here to keep you connected as your new home takes shape. With a lot people involved in the process, it is important you can all see the progress as it happens.
We will share photos, videos, milestones, and key moments like the roof shout so you and your team can follow along step by step. It is a simple way to stay close to the build and look forward to the moment you move in.
We’re stoked to be on this journey with you.
Let’s build something great together.
Meet your build team
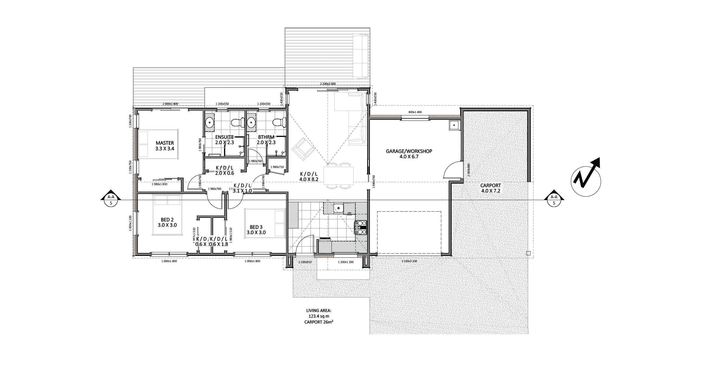
YOUR HOUSE PLANS
PROJECT MILESTONES
PHASE 1 - CONSTRUCTION
COMPLETED
Plans are finalised and signed off with you
Submitted to Council on June 30th 2025
Approved BC August 7th 2025
ROOF SHOUT
Tuesday 11th November at 1:30pm
PHASE 2 - FINISHING
Insulation and GIB are now finished
Plastering complete
Painting has now been completed.
PHASE 3 - OUTDOORS
PHASE 4- LETS GET YOU IN THERE


















































