Senior Living Joint Venture Opportunity
Meeting New Zealand’s Ageing Demographic with Scalable Development
Freehold senior housing delivered through disciplined joint venture partnerships.
The Opportunity
New Zealand’s population aged 65 and over is projected to grow steadily over the next 25 years, increasing demand for accessible, independent housing solutions.
Many seniors are seeking an alternative to traditional retirement villages. They want to remain in their own communities, retain full ownership of their homes, age in place with dignity and avoid deferred management fee structures.
Kingston Group develops purpose-built, freehold senior housing designed to meet this demand. Our model focuses on accessible design, practical layouts, walkable neighbourhood locations and low-maintenance living, while allowing residents to retain 100 percent ownership.
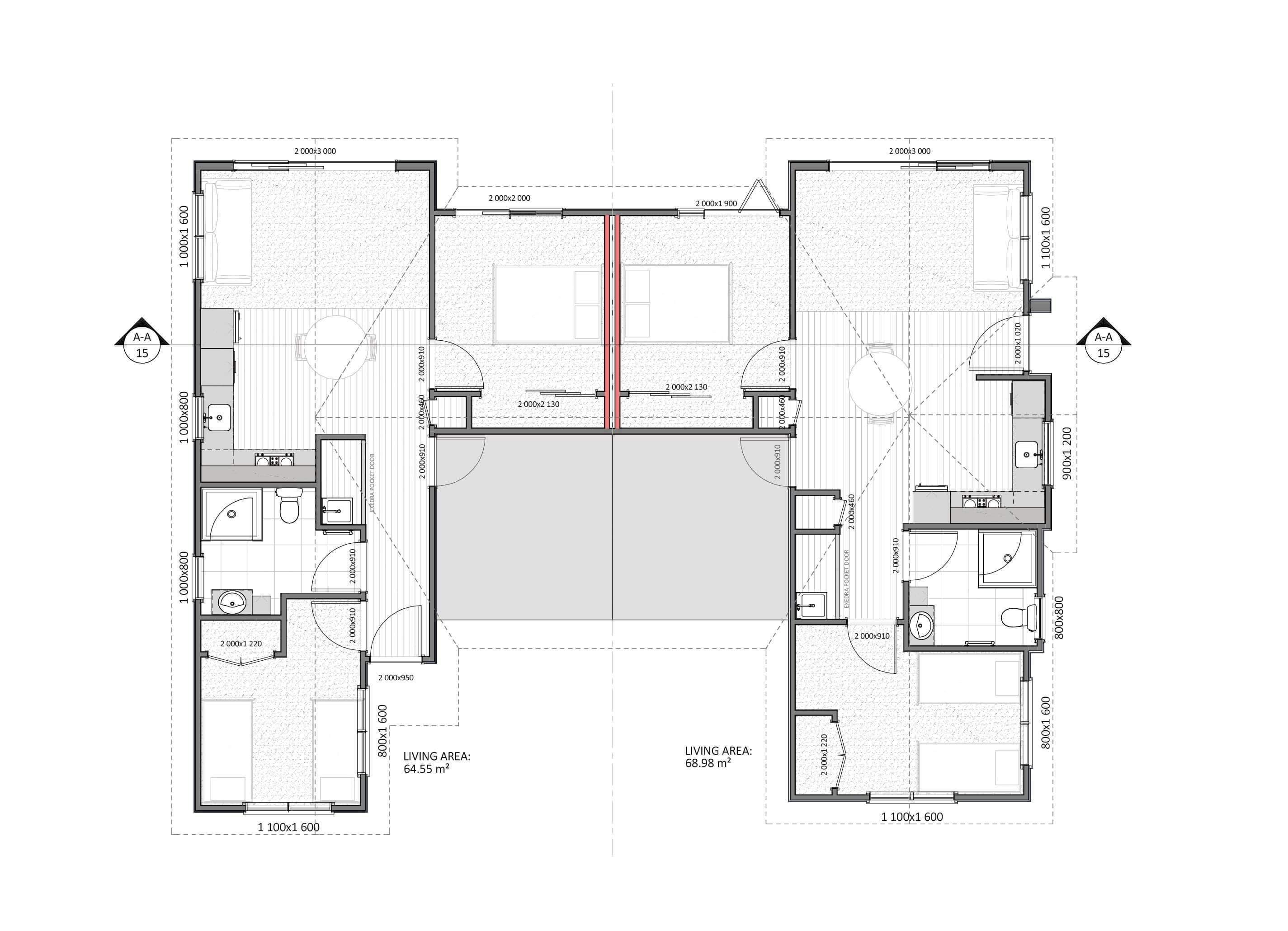
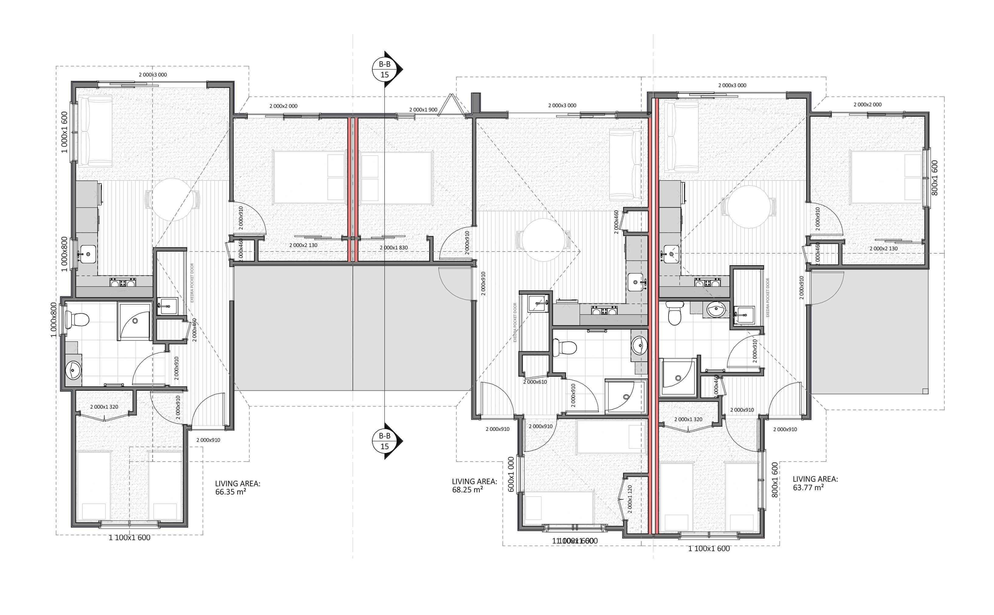
7 & 9 Mangawhero Rd – Matamata
Independent Living, Designed for Right Now
The 7 and 9 Mangawhero site in Matamata represents a strong example of this opportunity.
The site is located approximately 700 metres from the Matamata CBD, offering a flat and accessible walk to shops, services and everyday amenities. The local medical centre is within 850 metres, and nearby green spaces provide additional lifestyle appeal.
This central location, combined with demographic demand and a freehold ownership model, creates a well-positioned senior living opportunity in a growing Waikato township. Site plans are available for review.
The development at 7 and 9 Mangawhero Road converts a 2,200m² site into eight single-level, freehold homes designed for accessible, low-maintenance living
The project comprises four duplex buildings across eight lots. Each home offers approximately 107m² to 113m² of living area and includes:
Two bedrooms
One bathroom + seperate toilet
Open plan kitchen, dining and living
Internal access single garage
Private outdoor space
Lot sizes range from approximately 200m² to 261m², with overall site coverage of 41.7 percent.
The homes are ground level, practical in layout, and designed for easy movement, simple upkeep, and long-term independence. Positioned within walking distance of Matamata’s CBD and medical centre, the development provides a genuine alternative to traditional retirement village living while retaining full freehold ownership.
Who are Kingston Group?
CONNECT & ENABLE
Kingston Group is a Waikato-based residential development and building company, co-owned by Peter Leach and Isaac Savill.
With over 30 projects completed and more than 100 homes delivered, we specialise in creating thoughtful, profitable, and community-focused developments.
Kingston Group champion everyday people by creating homes and communities that inspire connection and opportunity. Based in Te Awamutu, we serve the Waipa, Cambridge, Hamilton & greater Waikato regions, designing and building houses that are more than just structures, they’re spaces where people can truly thrive.
As builders, we understand the importance of thoughtful building. That’s why we carefully design & craft every home using quality materials, premium finishes, and energy-efficient solutions. From single-level senior living to multi-family developments, each project reflects our dedication to meeting the needs of real people in our communities.
Whether it’s senior-friendly homes that prioritise independence, thoughtfully designed houses for first-home buyers, or modern builds tailored to a downsized lifestyle, our goal is to create communities that enhance lives. From the moment you step into one of our homes, you’ll feel the Kingston difference, a perfect balance of quality, comfort, and smart design.
We believe in building homes that matter, for people who matter.
Peter Leach
I’m Peter Leach, married to Rachel and a proud father of four. Our family is deeply rooted in community life, from church involvement to school activities and local sport. We believe in staying connected and contributing wherever we can.
Background: Former Chartered Accountant who discovered a passion for property development.
Experience: 7+ years in development and construction, leading acquisition, planning, finance, and sales.
Strengths: Analytical mindset, financial modelling, council navigation, investor relations.
ISAAC SAVIl
I’m Isaac Savill. I make sure the details stack up and the work is delivered properly. From engineering plans to site execution, my focus is quality, efficiency and accountability. Married to Kirra with three kids, I understand how much these projects matter. Outside of work I’m into sport and CrossFit, where preparation and discipline are non negotiable, the same approach I bring to every development.
Background: 20+ years in the trades, specialising in large commercial plumbing and gas projects (hospitals, hatcheries, and complex technical builds).
Experience: Expertise in engineering, site works, and resource consents.
Strengths: On-the-ground delivery, technical know-how, practical problem solving.
What we value?
What's important to us?
Not just words on the wall - this is in everything we do and everything we say.
01. FOCUS ON PEOPLE
Every decision we make is about creating meaningful opportunities for those we serve.
02. Valuing time
We believe time is precious, and we prioritise efficiency and impact in every project.
03. Creative Solutions
In a changing world, our innovative thinking brings solutions that matter.
04. Passion & fun
We love what we do, and that passion shines through in every home and community we help build.
05. Fairness always
Integrity is at the core of Kingston Group—ensuring we always act with fairness and transparency.
Kingston Group - built on trust
Real Clients. Real Projects. Real Feedback.
Invester Reference
Warrick MacDonald is one of the Waikato’s most experienced and respected property developers, with a career spanning decades and more than 5,000 residential sections delivered across the region. He has played a pivotal role in shaping some of Hamilton’s most significant growth areas, including landmark developments such as Callum Brae, Huntington, and Rotokauri Rise.
His expertise extends across a wide range of development styles, from small-scale infill projects through to large master-planned residential subdivisions and commercial projects.
"I’ve worked with Peter and the Kingston Group team across multiple projects, including the large-scale River Gardens development. What has always stood out is Peter’s proactive, solutions-focused approach. He takes on the headaches, navigates the challenges, and keeps me updated every step of the way. He’s upfront, honest, and consistently delivers on what he says he will.
The trust I have in him is such that I had no hesitation in introducing my own son as a JV partner. Working with Peter has made property development simple, profitable, and far less stressful."
Warrick MacDonald | 021 578 281
What Our Other Clients Say
Our Flagship Senior Living Project
983 Alexandra St - Te Awamutu
ALL SOLD - 2025
SENIOR-FRIENDLY LIVING
983 Alexandra Street
Te AwamUtu
$595,000
Completed homes
House Plans - duplex layout on section
Interior Design
More information about 983 Alexandra St
WHAT IS 'designed for senior living'?
Our homes are thoughtfully crafted for senior living with features like single-level layouts to eliminate the need for stairs, wide doorways to accommodate walkers or wheelchairs, and low-maintenance outdoor areas. Additional senior-friendly details include lever door handles for easier use, slip-resistant flooring in key areas like bathrooms and kitchens, and safety-focused designs throughout to ensure comfort and accessibility.
What are the ongoing costs of owning one of these homes?
Aside from regular home maintenance and council rates, there are no additional fees such as body corporate or deferred fees. The homes are designed to be low-maintenance, keeping ongoing costs minimal.
What are the homes made of?
Our homes are constructed with high-quality, durable materials designed for long-term, low-maintenance living. The cladding and finishes are carefully chosen to stand the test of time while offering a modern look.
What type of ownership do I have?
You have freehold ownership of your home and land. This means you own the property outright, with no ongoing fees associated with shared property management.
WHAT KIND OF guarantee COMES WITH THE HOME?
Our homes are covered by a 10 year Masters Builders Guarantee. Click here for more information.
Open Days - in construction & completion
Our Broader Portfolio
Delivering disciplined development across multiple sites and stages.
Bremworth Avenue | Hamilton
Bremworth is a contract build for a Hamilton couple who saw the potential in their section, transforming a single home into three modern, high-quality rental properties. After hearing Peter speak at a business event a few years ago, they knew Kingston Group was the right team to bring their vision to life.
This project is about more than just adding homes, it’s about redefining rental investment. By replacing an aging house with warm, efficient, low-maintenance homes, the owners have more than tripled their gross rental income while contributing to better-quality housing in Hamilton.
Raikes Ave | Te Awamutu
Raikes Avenue involved the removal of an existing dwelling and the construction of four new homes delivered in partnership with Kāinga Ora. The project demonstrates our ability to work within government frameworks, meet social housing requirements, and deliver quality homes that serve a genuine community need.
It required disciplined planning, coordination with multiple stakeholders, and a clear understanding of compliance and funding processes. Raikes Avenue reflects our capability to execute efficiently at smaller scale while maintaining strong standards, transparency, and alignment with public sector expectations.
Rewi Street | Te Awamutu
Rewi Street is a smart infill development that demonstrates how thoughtful planning can unlock value within existing neighbourhoods.
The project began with an existing home positioned centrally on a large section. Rather than remove it, we relocated the dwelling to the front of the site, fully renovating it into a modern three-bedroom plus office home with a new garage. This approach retained the character of the street while maximising land efficiency.
The rear portion of the section was then carefully developed into four new single-level, easy-care homes designed for lock-and-leave living. The layout includes two three-bedroom duplex homes on one side and two two-bedroom duplex homes on the other, creating a balanced mix of practical living options.
Rewi Street reflects our approach to development: disciplined site planning, practical design, and the creation of well-built homes that fit naturally into established Waikato communities.























